Rassegna storica del Risorgimento

BUROCRAZIA ITALIA 1860-1881; MINISTERO DELLA PUBBLICA ISTRUZION
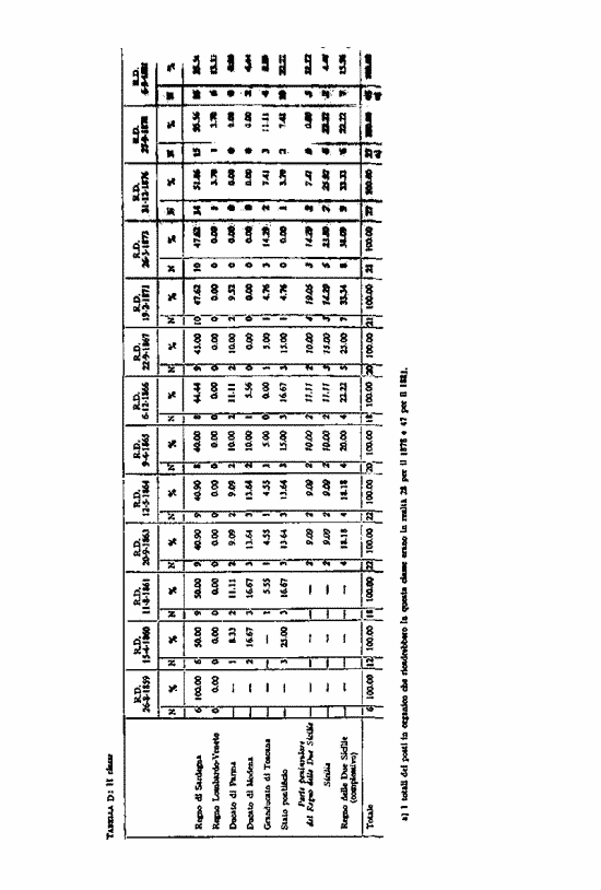
anno <1974>   pagina <389>
immagine non disponibile

*!
SHU8 3 3 3
i
35S
!ì!
a a a
à
fi*
3 5 9 S 5 S 333
* C Va h
I
*
X
i 3 9 3 9 9 111
o o o <-, p *> o
i
- a S
o S rk
15 5
o - -
23
*>" v
4
3S

o e
8 8
vi v{

s a 3
Os o ri O - * Oi H K
il

I
I 5
3
3 v*
"to' "p rf=r
N ot r
4
8 8
8 8 8
O v> 3
* O f ** " S W "
3 ? 5
2
T
s-p-
I
8 8
ci e;
3 K 3
4 -r M
s a = 2 2 *
-* m
1
3
a e
vi a
e o w S rt
4
8 8
5 8
9 -
é
I I
I I I 1
*o p
! ! ! ì
=3
5 '-5 S 3
1 II
1 a
5 3
ili!
?